- HOME
- 日本橋茅場町,八丁堀,日本橋兜町 の賃貸オフィス・賃貸店舗
-
-
第1井上ビル
外装の改修工事や耐震補強工事完了!全館全室照明LED化しました!管理やリニューアルの行き届いたビルです。茅場町駅3番出口徒歩1分でアクセスも申し分無しです。
- 所在地
- 東京都中央区日本橋茅場町2-14-1
- 交通
- 東京メトロ東西線 「茅場町」駅 徒歩1分
- 東京メトロ日比谷線 「八丁堀」駅 徒歩6分
- 東京メトロ銀座線 「日本橋」駅 徒歩8分
- 竣工
- 1973/06
- 用途
- 事務所、店舗、物販サービス、美容室
※ビルの空フロア全体での用途を表示
| フロア | 面積 | 賃料 | 共益費 | 保証金 | 用途 | 間取り | 内装仕様 | |
|---|---|---|---|---|---|---|---|---|
| 5 階 | 12.30坪 40.66㎡ | 184,500円 坪15,000円 | 36,900円 坪3,000円 | 1,476,000円 賃料の8ヶ月分 | 事務所 |
|
||
| 1 階 | 23.90坪 79.00㎡ | 669,200円 坪28,000円 | 119,500円 坪5,000円 | 5,353,600円 賃料の8ヶ月分 | 事務所 店舗 |
|
スケルトン |
-
-
JR八丁堀ビル
- 所在地
- 東京都中央区八丁堀3-25-10
- 交通
- JR京葉線 「八丁堀」駅 徒歩1分
- 竣工
- 1992/04/01
- 用途
- 事務所
※ビルの空フロア全体での用途を表示
| フロア | 面積 | 賃料 | 共益費 | 保証金 | 用途 | 間取り | 内装仕様 | |
|---|---|---|---|---|---|---|---|---|
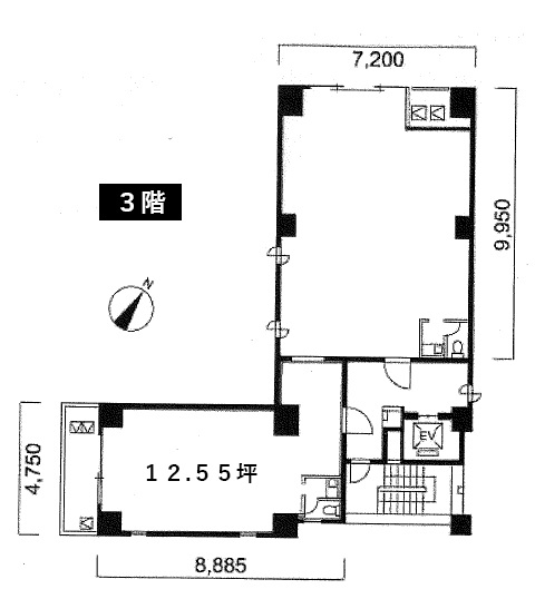
| 3 階 | 41.50坪 137.18㎡ | 809,250円 | お問い合わせ | 9,711,000円 | 事務所 |
|
事務所仕様 |
-
-
キューブワン八丁堀
2022年8月竣工の新築オフィスビル!八丁堀・茅場町駅を最寄りにしながら東京駅を徒歩圏内に、複数路線利用可能という立地と、都心ながら落ち着きある環境という恵まれたロケーションです。
- 所在地
- 東京都中央区八丁堀1-11-12
- 交通
- 東京メトロ日比谷線・JR京葉線 「八丁堀」駅 徒歩2分
- 東京メトロ日比谷線・東西線 「茅場町」駅 徒歩3分
- 東京メトロ銀座線 「日本橋」駅 徒歩9分
- 竣工
- 2022/08
- 用途
- 事務所
※ビルの空フロア全体での用途を表示
| フロア | 面積 | 賃料 | 共益費 | 保証金 | 用途 | 間取り | 内装仕様 | |
|---|---|---|---|---|---|---|---|---|
| 2 階 | 64.64坪 213.68㎡ | -円 | -円 | お問い合わせ | 事務所 |
|
事務所仕様 |
-
-
八丁堀岡谷ビル
「八丁堀」A2出口より徒歩1分の立地、八丁堀界隈では希少な大型区画のビル。ビル裏手側は大きな公園の為、開放的な眺望となっています。一度ご覧になっていただければ必ず気に入っていただけるビルです。
- 所在地
- 東京都中央区八丁堀4-11-5
- 交通
- 東京メトロ日比谷線 「八丁堀」駅 徒歩1分
- JR京葉線 「八丁堀」駅 徒歩1分
- 東京メトロ有楽町線 「新富町」駅 徒歩7分
- 竣工
- 1998/11
- 用途
- 事務所、倉庫
※ビルの空フロア全体での用途を表示
| フロア | 面積 | 賃料 | 共益費 | 保証金 | 用途 | 間取り | 内装仕様 | |
|---|---|---|---|---|---|---|---|---|
| 6 階 | 63.02坪 208.33㎡ | 1,008,320円 坪16,000円 | 252,080円 坪4,000円 | 12,099,840円 | 事務所 |
|
事務所仕様 | |
| B1 階 | 21.33坪 70.52㎡ | 170,640円 坪8,000円 | -円 | 1,023,840円 | - |
|
-
-
塩部ビルディング
八丁堀駅アクセス良好なビルです!手入れが行き届いており、外観・共用部ともに清潔感があります。一階には飲食店も入居しており、お食事にも困りません。
- 所在地
- 東京都中央区八丁堀4-9-6
- 交通
- 東京メトロ日比谷線 「八丁堀」駅 徒歩1分
- JR京葉線 「八丁堀」駅 徒歩1分
- 都営浅草線 「宝町」駅 徒歩7分
- 竣工
- 1981/04
- 用途
- 事務所、店舗、物販サービス
※ビルの空フロア全体での用途を表示
| フロア | 面積 | 賃料 | 共益費 | 保証金 | 用途 | 間取り | 内装仕様 | |
|---|---|---|---|---|---|---|---|---|
| 6 階 | 26.60坪 87.94㎡ | 332,500円 坪12,500円 | 66,500円 坪2,500円 | 1,995,000円 | 事務所 店舗 |
|
事務所仕様 | |
| 2 階 | 24.06坪 79.53㎡ | 300,750円 坪12,500円 | 60,150円 坪2,500円 | 1,804,500円 | 事務所 |
|
事務所仕様 |
-
-
大湯ビル
通り面は全面窓になっているのが特徴的!新大橋通りを1本入った、すすずらん通り沿いのビルです!茅場町駅徒歩2分で、周りには飲食店・コンビニだけでなく、郵便局や印刷会社もあり仕事が捗ります!
- 所在地
- 東京都中央区日本橋茅場町2-6-8
- 交通
- 東京メトロ日比谷線 「茅場町」駅 徒歩2分
- 東京メトロ銀座線 「日本橋」駅 徒歩8分
- JR京葉線 「八丁堀」駅 徒歩7分
- 竣工
- 1964/10
- 用途
- 事務所、店舗、軽飲食、物販サービス、美容室
※ビルの空フロア全体での用途を表示
| フロア | 面積 | 賃料 | 共益費 | 保証金 | 用途 | 間取り | 内装仕様 | |
|---|---|---|---|---|---|---|---|---|
| B1 階 | 43.00坪 142.14㎡ | 860,000円 坪20,000円 | 129,000円 坪3,000円 | 5,160,000円 | 事務所 店舗 |
|
居抜き | |
| 1 階 | 10.00坪 33.05㎡ | 180,000円 坪18,000円 | 30,000円 坪3,000円 | 1,080,000円 賃料の6ヶ月分 | 事務所 店舗 |
|
事務所仕様 |
-
-
東京NSビル
2024年2月竣工予定の新築オフィスビルです。八丁堀駅から徒歩2分と交通アクセス良好です。徒歩圏内にその他駅・路線利用できます。
- 所在地
- 東京都中央区八丁堀2-29-4
- 交通
- 東京メトロ日比谷線 「八丁堀」駅 徒歩2分
- 東京メトロ東西線 「茅場町」駅 徒歩5分
- 都営浅草線 「宝町」駅 徒歩9分
- 竣工
- 2024/02
- 用途
- 事務所、店舗、物販サービス、美容室
※ビルの空フロア全体での用途を表示
| フロア | 面積 | 賃料 | 共益費 | 保証金 | 用途 | 間取り | 内装仕様 | |
|---|---|---|---|---|---|---|---|---|
| 2 階 | 29.69坪 98.15㎡ | 564,090円 坪19,000円 | -円 | 2,256,360円 | 事務所 店舗 |
|
事務所仕様 |
-
-
茅場町2丁目ビル
2001年竣工の新耐震ビル。淡いブルーの外壁は、並びのビルの中でもひときわ目を引きます。茅場町駅徒歩1分、周辺には飲食店も多く便利な環境です。
- 所在地
- 東京都中央区日本橋茅場町2-4-5
- 交通
- 東京メトロ日比谷線 「茅場町」駅 徒歩1分
- 東京メトロ東西線 「茅場町」駅 徒歩3分
- 東京メトロ日比谷線 「八丁堀」駅 徒歩7分
- 竣工
- 2001/1
- 用途
- 事務所
※ビルの空フロア全体での用途を表示
| フロア | 面積 | 賃料 | 共益費 | 保証金 | 用途 | 間取り | 内装仕様 | |
|---|---|---|---|---|---|---|---|---|
| 4 階 | 26.74坪 88.39㎡ | 401,100円 坪15,000円 | 93,590円 坪3,500円 | 4,813,200円 賃料の12ヶ月分 | 事務所 |
|
||
| 8 階 | 26.74坪 88.39㎡ | 401,100円 坪15,000円 | 93,590円 坪3,500円 | 4,813,200円 賃料の12ヶ月分 | 事務所 |
|
事務所仕様 |
-
-
佑昌ビル
2017年外壁大規模修繕済み!
1フロア1テナントの整形オフィスは、茅場町駅5番出口より50mの好立地!周辺環境も充実しており、手ごろな賃料に更新料はなしとお値打ちの物件です。- 所在地
- 東京都中央区日本橋茅場町2-7-2
- 交通
- 東京メトロ日比谷線 「茅場町」駅 徒歩1分
- 都営浅草線・東京メトロ銀座線 「日本橋」駅 徒歩5分
- 東京メトロ東西線 「茅場町」駅 徒歩1分
- 竣工
- 1987/2
- 用途
- 事務所、店舗
※ビルの空フロア全体での用途を表示
| フロア | 面積 | 賃料 | 共益費 | 保証金 | 用途 | 間取り | 内装仕様 | |
|---|---|---|---|---|---|---|---|---|
| 1 階 | 15.02坪 49.66㎡ | 270,360円 坪18,000円 | -円 | 3,244,320円 | 事務所 店舗 |
|
事務所仕様 |
-
-
FF日本橋茅場町(旧:ザ・シティ日本橋茅場町)
2021年12月に竣工した新築ビル。茅場町駅から徒歩1分とアクセス良好。全面ガラスウォールで高級感ある外観が特徴です。
- 所在地
- 東京都中央区日本橋茅場町1-12-6
- 交通
- 東京メトロ日比谷線 「茅場町」駅 徒歩1分
- 東京メトロ東西線 「茅場町」駅 徒歩1分
- JR京葉線 「八丁堀」駅 徒歩8分
- 竣工
- 2021/12
- 用途
- 店舗、軽飲食、重飲食
※ビルの空フロア全体での用途を表示
| フロア | 面積 | 賃料 | 共益費 | 保証金 | 用途 | 間取り | 内装仕様 | |
|---|---|---|---|---|---|---|---|---|
| 3 階 | 25.48坪 84.23㎡ | 579,000円 坪22,723円 | 58,000円 坪2,276円 | 3,474,000円 賃料の6ヶ月分 | 店舗 |
|
-
-
宝町TATSUMIビル
2006年にリニューアルしております。大通りに面している角ビルで視認性◎
エントランスやトイレは洗練された雰囲気です。A・Bと分割され募集しているフロアもあります。共用部には男女別トイレ、設備もOAフロア、機械警備、光ファイバー対応、個別空調、24時間利用可能としっかりしています。- 所在地
- 東京都中央区八丁堀4-1-3
- 交通
- 都営浅草線 「宝町」駅 徒歩2分
- 東京メトロ銀座線 「京橋」駅 徒歩5分
- 東京メトロ日比谷線 「八丁堀」駅 徒歩4分
- 竣工
- 1962/12
- 用途
- 事務所
※ビルの空フロア全体での用途を表示
| フロア | 面積 | 賃料 | 共益費 | 保証金 | 用途 | 間取り | 内装仕様 | |
|---|---|---|---|---|---|---|---|---|
| 7(B) 階 | 31.27坪 103.37㎡ | 469,090円 坪15,000円 | -円 | 3,752,720円 | 事務所 |
|
-
-
茅場町偕成ビル(旧:宗和ビル)
茅場町駅が利用できる物件。オフィス街ながら緑が多く、自然豊かな環境。春は美しい桜並木が楽しめるさくら通り沿い。2020年8月、共用部リニューアル済で気持ちよく利用できます!
- 所在地
- 東京都中央区日本橋茅場町2-3-6
- 交通
- 東京メトロ日比谷線 「茅場町」駅 徒歩1分
- 東京メトロ東西線 「茅場町」駅 徒歩1分
- 東京メトロ銀座線 「日本橋」駅 徒歩6分
- 竣工
- 2009/03
- 用途
- 事務所
※ビルの空フロア全体での用途を表示
| フロア | 面積 | 賃料 | 共益費 | 保証金 | 用途 | 間取り | 内装仕様 | |
|---|---|---|---|---|---|---|---|---|
| 8 階 | 67.97坪 224.70㎡ | -円 | 237,895円 坪3,500円 | お問い合わせ | 事務所 |
|
事務所仕様 |
-
-
金谷ビル
八丁堀駅出入り口から徒歩数秒の好立地の為、多少の雨であれば濡れずに移動できるので便利です。ビル前に少しスペースがあるので、少しの時間なら駐車できるのも便利。オーナー様はテナント様想いで安心できると思います
- 所在地
- 東京都中央区八丁堀4-11-3
- 交通
- 東京メトロ日比谷線 「八丁堀」駅 徒歩1分
- JR京葉線 「八丁堀」駅 徒歩1分
- 東京メトロ有楽町線 「新富町」駅 徒歩7分
- 竣工
- 1974/07/02
- 用途
- 事務所
※ビルの空フロア全体での用途を表示
| フロア | 面積 | 賃料 | 共益費 | 保証金 | 用途 | 間取り | 内装仕様 | |
|---|---|---|---|---|---|---|---|---|
| 4 階 | 18.94坪 62.62㎡ | 189,400円 坪10,000円 | 37,880円 坪2,000円 | 1,136,400円 賃料の6ヶ月分 | 事務所 |
|
事務所仕様 |
-
-
兜町第一ビル
路地にありますが、窓が多いため採光が期待できます!
周辺には小規模なオフィスビルや飲食店が多く連なり、大通り沿いに銀行やコンビニといった施設が集中していて便利な環境です。- 所在地
- 東京都中央区日本橋兜町9-7
- 交通
- 東京メトロ日比谷線・東西線 「茅場町」駅 徒歩1分
- 都営浅草線・銀座線 「日本橋」駅 徒歩3分
- JR各線 「東京」駅 徒歩10分
- 竣工
- 1962
- 用途
- 事務所
※ビルの空フロア全体での用途を表示
| フロア | 面積 | 賃料 | 共益費 | 保証金 | 用途 | 間取り | 内装仕様 | |
|---|---|---|---|---|---|---|---|---|
| 2 階 | 27.60坪 91.24㎡ | -円 | -円 | お問い合わせ | 事務所 |
|
事務所仕様 |
-
-
八丁堀フロンティアビル
壁面ガラス張りの美観ビル!天井までの窓で、明るい室内!さらに、八丁堀駅アクセス抜群で、宝町駅、茅場町駅の利用も可能!
- 所在地
- 東京都中央区八丁堀4-9-9
- 交通
- 東京メトロ日比谷線 「八丁堀」駅 徒歩2分
- 都営浅草線 「宝町」駅 徒歩5分
- 東京メトロ有楽町線 「新富町 」駅 徒歩7分
- 竣工
- 1991/01
- 用途
- 事務所
※ビルの空フロア全体での用途を表示
| フロア | 面積 | 賃料 | 共益費 | 保証金 | 用途 | 間取り | 内装仕様 | |
|---|---|---|---|---|---|---|---|---|
| 3 階 | 24.01坪 79.40㎡ | 432,180円 坪18,000円 | -円 | 864,360円 賃料の2ヶ月分 | 事務所 |
|
事務所仕様 |
-
-
日本橋ピアザビルディング
平成通り沿いにあり、1階がガソリンスタンドが目印です。
エントランスは高級感あり、エレベーターも2基あり。
駅は日本橋、茅場町5分圏内です。- 所在地
- 東京都中央区日本橋茅場町3-1-11
- 交通
- 東京メトロ銀座線 「日本橋」駅 徒歩6分
- 東京メトロ東西線 「茅場町」駅 徒歩3分
- 竣工
- 1991
- 用途
- 事務所
※ビルの空フロア全体での用途を表示
| フロア | 面積 | 賃料 | 共益費 | 保証金 | 用途 | 間取り | 内装仕様 | |
|---|---|---|---|---|---|---|---|---|
| 2 階 | 107.00坪 353.71㎡ | 1,712,000円 坪16,000円 | 428,000円 坪4,000円 | 20,544,000円 賃料の12ヶ月分 | 事務所 |
|
-
-
市川ビル
平成通りを1歩裏手に入ると閑静な所にこちらのビルが。
隣に緑があるので落ち着くかもですね。八丁堀駅と新富町駅利用可能ですし、付近に飲食店があるのでオフィス環境が良好です。- 所在地
- 東京都中央区八丁堀4-4-5
- 交通
- 東京メトロ日比谷線 「八丁堀」駅 徒歩3分
- JR京葉線 「八丁堀」駅 徒歩3分
- 東京メトロ有楽町線 「新富町」駅 徒歩4分
- 竣工
- 1960/05
- 用途
- 事務所
※ビルの空フロア全体での用途を表示
| フロア | 面積 | 賃料 | 共益費 | 保証金 | 用途 | 間取り | 内装仕様 | |
|---|---|---|---|---|---|---|---|---|
| 4 階 | 29.50坪 97.52㎡ | 265,500円 坪9,000円 | -円 | 1,062,000円 賃料の4ヶ月分 | 事務所 |
|
事務所仕様 |




