- HOME
- 日本橋茅場町 の賃貸オフィス・賃貸店舗
-
-
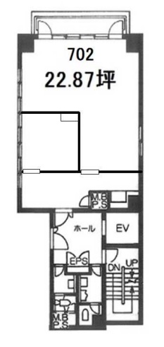
NOVEL WORK 日本橋茅場町(旧:山本ビル)
茅場町駅徒歩1分。八丁堀駅、日本橋駅、水天宮前駅も徒歩圏内でマルチアクセス可能な立地です。周辺環境も良く、オフィス周辺は飲食店・カフェ・コンビニなど便利に利用できます。オフィスは2部屋あり、各フロアに専用トイレと給湯があります。
- 所在地
- 東京都中央区日本橋茅場町1-11-9
- 交通
- 東京メトロ日比谷線 「茅場町」駅 徒歩1分
- 東京メトロ東西線 「茅場町」駅 徒歩1分
- 都営浅草線 「日本橋」駅 徒歩5分
- 竣工
- 1985/04
- 用途
- 事務所
※ビルの空フロア全体での用途を表示
| フロア | 面積 | 賃料 | 共益費 | 保証金 | 用途 | 間取り | 内装仕様 | |
|---|---|---|---|---|---|---|---|---|
| 9+10 階 | 71.68坪 236.95㎡ | 2,078,720円 坪29,000円 | お問い合わせ | お問い合わせ | 事務所 |
|
セットアップオフィス 什器あり | |
| B1 階 | 27.77坪 91.81㎡ | 638,710円 坪23,000円 | -円 | -円 | 事務所 |
|
セットアップオフィス 什器あり |
-
-
第1井上ビル
外装の改修工事や耐震補強工事完了!全館全室照明LED化しました!管理やリニューアルの行き届いたビルです。茅場町駅3番出口徒歩1分でアクセスも申し分無しです。
- 所在地
- 東京都中央区日本橋茅場町2-14-1
- 交通
- 東京メトロ東西線 「茅場町」駅 徒歩1分
- 東京メトロ日比谷線 「八丁堀」駅 徒歩6分
- 東京メトロ銀座線 「日本橋」駅 徒歩8分
- 竣工
- 1973/06
- 用途
- 事務所、店舗、物販サービス、美容室
※ビルの空フロア全体での用途を表示
| フロア | 面積 | 賃料 | 共益費 | 保証金 | 用途 | 間取り | 内装仕様 | |
|---|---|---|---|---|---|---|---|---|
| 1 階 | 23.90坪 79.00㎡ | 669,200円 坪28,000円 | 119,500円 坪5,000円 | 5,353,600円 賃料の8ヶ月分 | 事務所 店舗 |
|
スケルトン | |
| 3 階 | 20.34坪 67.23㎡ | 264,420円 坪13,000円 | 61,020円 坪3,000円 | 2,115,360円 賃料の8ヶ月分 | 事務所 |
|
居抜き |
-
-
スズキビル
1フロア・1テナントのコンパクトオフィス。茅場町駅からのアクセスも良く、新規独立や分室使用など最適です。
- 所在地
- 東京都中央区日本橋茅場町3-3-5
- 交通
- 東京メトロ日比谷線 「八丁堀」駅 徒歩3分
- 東京メトロ東西線 「茅場町」駅 徒歩4分
- 竣工
- -
- 用途
- 事務所
※ビルの空フロア全体での用途を表示
| フロア | 面積 | 賃料 | 共益費 | 保証金 | 用途 | 間取り | 内装仕様 | |
|---|---|---|---|---|---|---|---|---|
| 1 階 | 4.02坪 13.30㎡ | 185,000円 | 5,000円 | 1,295,000円 賃料の7ヶ月分 | 事務所 |
|
事務所仕様 |
-
-
グリンヒルビル
茅場町駅徒歩1分。外装やトイレ等リニューアルされていて、エントランスも広くおススメできる物件です。窓面からの採光もあります。
1階には飲食店が入居中。周辺にも多数あり食事には困りませんね。- 所在地
- 東京都中央区日本橋茅場町1-10-8
- 交通
- 東京メトロ日比谷線 「茅場町」駅 徒歩1分
- 東京メトロ東西線 「茅場町」駅 徒歩1分
- 東京メトロ銀座線 「日本橋」駅 徒歩3分
- 竣工
- 1965/06
- 用途
- 事務所
※ビルの空フロア全体での用途を表示
| フロア | 面積 | 賃料 | 共益費 | 保証金 | 用途 | 間取り | 内装仕様 | |
|---|---|---|---|---|---|---|---|---|
| 2 階 | 64.89坪 214.51㎡ | 908,460円 坪14,000円 | 194,670円 坪3,000円 | 9,084,600円 賃料の10ヶ月分 | 事務所 |
|
事務所仕様 |
-
-
イースト・インタービル
茅場町駅1分!新大橋通りが真横の立地は、金融機関・印刷会社・郵便局も近く、もちろんコンビニや飲食店も豊富にございます。室内もメンテナンスが行き届いており、快適に仕事が行える環境です。セキュリティ面も安心できます!
- 所在地
- 東京都中央区日本橋茅場町2-7-3
- 交通
- 東京メトロ日比谷線 「茅場町」駅 徒歩1分
- 東京メトロ東西線 「茅場町」駅 徒歩1分
- 都営浅草線 「日本橋」駅 徒歩6分
- 竣工
- 1994/11
- 用途
- 事務所
※ビルの空フロア全体での用途を表示
| フロア | 面積 | 賃料 | 共益費 | 保証金 | 用途 | 間取り | 内装仕様 | |
|---|---|---|---|---|---|---|---|---|
| 7 階 | 36.13坪 119.43㎡ | 433,560円 坪12,000円 | 108,390円 坪3,000円 | 1,300,680円 賃料の3ヶ月分 | 事務所 |
|
事務所仕様 |
-
-
関電不動産茅場町ビル
2025年10月竣工予定の新築物件です!
- 所在地
- 東京都中央区日本橋茅場町2-8-8
- 交通
- 東京メトロ日比谷線 「茅場町」駅 徒歩1分
- 東京メトロ東西線 「茅場町」駅 徒歩1分
- 都営浅草線 「日本橋」駅 徒歩7分
- 竣工
- 2025/10
- 用途
- 事務所
※ビルの空フロア全体での用途を表示
-
-
鉄鋼会館
9階建ての賃貸オフィス物件。新耐震基準に適合したビルです。24時間有人警備+夜間の入館は指紋認証システムを導入とセキュリティ面もバッチリです。
- 所在地
- 東京都中央区日本橋茅場町3-2-10
- 交通
- 東京メトロ東西線 「茅場町」駅 徒歩1分
- 東京メトロ日比谷線 「八丁堀」駅 徒歩3分
- 都営浅草線 「日本橋」駅 徒歩3分
- 竣工
- 1966/04
- 用途
- 事務所
※ビルの空フロア全体での用途を表示
| フロア | 面積 | 賃料 | 共益費 | 保証金 | 用途 | 間取り | 内装仕様 | |
|---|---|---|---|---|---|---|---|---|
| 1 階 | 31.72坪 104.85㎡ | 720,000円 | -円 | 5,760,000円 | 事務所 |
|
事務所仕様 |
-
-
日本橋茅場町阪神ビル
茅場町駅からすぐの角ビル。耐震補強工事済みのビルです。オフィスの形は長方形でレイアウトしやすい形になっています。周辺環境も銀行・コンビニ・カフェ・飲食店などあり便利です。
- 所在地
- 東京都中央区日本橋茅場町1-13-21
- 交通
- 東京メトロ東西線 「茅場町」駅 徒歩1分
- 東京メトロ日比谷線 「茅場町」駅 徒歩1分
- 東京メトロ日比谷線 「八丁堀」駅 徒歩8分
- 竣工
- 1975/06
- 用途
- 事務所
※ビルの空フロア全体での用途を表示
| フロア | 面積 | 賃料 | 共益費 | 保証金 | 用途 | 間取り | 内装仕様 | |
|---|---|---|---|---|---|---|---|---|
| 5 階 | 90.24坪 298.32㎡ | -円 | 379,008円 坪4,200円 | -円 | 事務所 |
|
事務所仕様 |
-
-
大野ビル
茅場町駅出入り口から1分ほどの近さ。2方路に面した角ビル。しかも南東向きに建っているので朝陽が気持ちよいオフィスになりそう。赤レンガのタイルも渋いです。
- 所在地
- 東京都中央区日本橋茅場町2-11-5
- 交通
- 日比谷線 「茅場町」駅 徒歩1分
- 東京メトロ東西線 「茅場町」駅 徒歩1分
- JR京葉線 「八丁堀」駅 徒歩5分
- 竣工
- 1986/10
- 用途
- 事務所
※ビルの空フロア全体での用途を表示
| フロア | 面積 | 賃料 | 共益費 | 保証金 | 用途 | 間取り | 内装仕様 | |
|---|---|---|---|---|---|---|---|---|
| 4 階 | 17.30坪 57.20㎡ | 224,900円 坪13,000円 | お問い合わせ | 1,349,400円 賃料の6ヶ月分 | 事務所 |
|
事務所仕様 |
-
-
茅場町2丁目ビル
茅場町駅より徒歩2分、複数路線利用可能な好立地物件です。角地に所在し視認性良好です。
- 所在地
- 東京都中央区日本橋茅場町2-3-4
- 交通
- 東京メトロ日比谷線 「茅場町」駅 徒歩2分
- 東京メトロ東西線 「茅場町」駅 徒歩2分
- 東京メトロ日比谷線 「八丁堀」駅 徒歩6分
- 竣工
- 1975/09
- 用途
- 店舗、軽飲食、重飲食、物販サービス、美容室
※ビルの空フロア全体での用途を表示
| フロア | 面積 | 賃料 | 共益費 | 保証金 | 用途 | 間取り | 内装仕様 | |
|---|---|---|---|---|---|---|---|---|
| 1棟 | 23.09坪 76.35㎡ | 700,000円 | -円 | 700,000円 賃料の1ヶ月分 | 店舗 |
|
居抜き |
-
-
大湯ビル
通り面は全面窓になっているのが特徴的!新大橋通りを1本入った、すすずらん通り沿いのビルです!茅場町駅徒歩2分で、周りには飲食店・コンビニだけでなく、郵便局や印刷会社もあり仕事が捗ります!
- 所在地
- 東京都中央区日本橋茅場町2-6-8
- 交通
- 東京メトロ日比谷線 「茅場町」駅 徒歩2分
- 東京メトロ銀座線 「日本橋」駅 徒歩8分
- JR京葉線 「八丁堀」駅 徒歩7分
- 竣工
- 1964/10
- 用途
- 事務所、店舗、物販サービス
※ビルの空フロア全体での用途を表示
| フロア | 面積 | 賃料 | 共益費 | 保証金 | 用途 | 間取り | 内装仕様 | |
|---|---|---|---|---|---|---|---|---|
| B1 階 | 43.00坪 142.14㎡ | 860,000円 坪20,000円 | 129,000円 坪3,000円 | 5,160,000円 | 事務所 店舗 |
|
居抜き | |
| 1 階 | 10.00坪 33.05㎡ | 180,000円 坪18,000円 | 30,000円 坪3,000円 | 1,080,000円 賃料の6ヶ月分 | 事務所 店舗 |
|
事務所仕様 |
-
-
日本橋大江戸ビル
北欧風高級エントランスが自慢の築浅ビル。個別空調やLED照明の設備で節約できます。大きな窓の角部屋です。ルーフトップテラスで一息つけます。
- 所在地
- 東京都中央区日本橋茅場町2-5-6
- 交通
- 東京メトロ日比谷線 「茅場町」駅 徒歩1分
- 東京メトロ日比谷線 「八丁堀」駅 徒歩2分
- 東京メトロ銀座線 「日本橋」駅 徒歩4分
- 竣工
- 2011/03
- 用途
- 事務所
※ビルの空フロア全体での用途を表示
| フロア | 面積 | 賃料 | 共益費 | 保証金 | 用途 | 間取り | 内装仕様 | |
|---|---|---|---|---|---|---|---|---|
| 6 階 | 4.50坪 14.87㎡ | 67,000円 | 10,000円 | -円 | 事務所 |
|
セットアップオフィス 什器あり | |
| 5(503) 階 | 6.18坪 20.42㎡ | 163,770円 坪26,500円 | 21,630円 坪3,500円 | 982,620円 | 事務所 |
|
事務所仕様 |
-
-
茅場町2丁目ビル
2001年竣工の新耐震ビル。淡いブルーの外壁は、並びのビルの中でもひときわ目を引きます。茅場町駅徒歩1分、周辺には飲食店も多く便利な環境です。
- 所在地
- 東京都中央区日本橋茅場町2-4-5
- 交通
- 東京メトロ日比谷線 「茅場町」駅 徒歩1分
- 東京メトロ東西線 「茅場町」駅 徒歩3分
- 東京メトロ日比谷線 「八丁堀」駅 徒歩7分
- 竣工
- 2001/1
- 用途
- 事務所
※ビルの空フロア全体での用途を表示
| フロア | 面積 | 賃料 | 共益費 | 保証金 | 用途 | 間取り | 内装仕様 | |
|---|---|---|---|---|---|---|---|---|
| 6 階 | 26.74坪 88.40㎡ | 401,100円 坪15,000円 | 93,590円 坪3,500円 | 3,208,800円 賃料の8ヶ月分 | 事務所 |
|
事務所仕様 |
-
-
高田ビル
新大橋通りとすずらん通りの間で茅場町駅・八丁堀駅ともに利用しやすい立地です!賃料はリーズナブルで、初期費用も安く抑えられます。周りには飲食店も多く、ランチに困りません!
- 所在地
- 東京都中央区日本橋茅場町3-3-2
- 交通
- 東京メトロ日比谷線 「茅場町」駅 徒歩2分
- 東京メトロ東西線 「茅場町」駅 徒歩2分
- 東京メトロ日比谷線 「八丁堀」駅 徒歩3分
- 竣工
- 1973/12
- 用途
- 事務所
※ビルの空フロア全体での用途を表示
| フロア | 面積 | 賃料 | 共益費 | 保証金 | 用途 | 間取り | 内装仕様 | |
|---|---|---|---|---|---|---|---|---|
| 3 階 | 13.97坪 46.20㎡ | 150,000円 | お問い合わせ | 450,000円 賃料の3ヶ月分 | 事務所 |
|
事務所仕様 |
-
-
佑昌ビル
2017年外壁大規模修繕済み!
1フロア1テナントの整形オフィスは、茅場町駅5番出口より50mの好立地!周辺環境も充実しており、手ごろな賃料に更新料はなしとお値打ちの物件です。- 所在地
- 東京都中央区日本橋茅場町2-7-2
- 交通
- 東京メトロ日比谷線 「茅場町」駅 徒歩1分
- 都営浅草線・東京メトロ銀座線 「日本橋」駅 徒歩5分
- 東京メトロ東西線 「茅場町」駅 徒歩1分
- 竣工
- 1987/2
- 用途
- 事務所、店舗
※ビルの空フロア全体での用途を表示
| フロア | 面積 | 賃料 | 共益費 | 保証金 | 用途 | 間取り | 内装仕様 | |
|---|---|---|---|---|---|---|---|---|
| 1 階 | 15.02坪 49.66㎡ | 300,400円 坪20,000円 | -円 | 3,604,800円 | 事務所 店舗 |
|
事務所仕様 |
-
-
FF日本橋茅場町(旧:ザ・シティ日本橋茅場町)
2021年12月に竣工した新築ビル。茅場町駅から徒歩1分とアクセス良好。全面ガラスウォールで高級感ある外観が特徴です。
- 所在地
- 東京都中央区日本橋茅場町1-12-6
- 交通
- 東京メトロ日比谷線 「茅場町」駅 徒歩1分
- 東京メトロ東西線 「茅場町」駅 徒歩1分
- JR京葉線 「八丁堀」駅 徒歩8分
- 竣工
- 2021/12
- 用途
- 店舗、軽飲食、重飲食
※ビルの空フロア全体での用途を表示
| フロア | 面積 | 賃料 | 共益費 | 保証金 | 用途 | 間取り | 内装仕様 | |
|---|---|---|---|---|---|---|---|---|
| 3 階 | 25.48坪 84.23㎡ | 442,000円 坪17,347円 | 58,000円 坪2,276円 | 2,652,000円 賃料の6ヶ月分 | 店舗 |
|
-
-
茅場町偕成ビル(旧:宗和ビル)
茅場町駅が利用できる物件。オフィス街ながら緑が多く、自然豊かな環境。春は美しい桜並木が楽しめるさくら通り沿い。2020年8月、共用部リニューアル済で気持ちよく利用できます!
- 所在地
- 東京都中央区日本橋茅場町2-3-6
- 交通
- 東京メトロ日比谷線 「茅場町」駅 徒歩1分
- 東京メトロ東西線 「茅場町」駅 徒歩1分
- 東京メトロ銀座線 「日本橋」駅 徒歩6分
- 竣工
- 2009/03
- 用途
- 事務所
※ビルの空フロア全体での用途を表示
| フロア | 面積 | 賃料 | 共益費 | 保証金 | 用途 | 間取り | 内装仕様 | |
|---|---|---|---|---|---|---|---|---|
| 8 階 | 67.97坪 224.70㎡ | -円 | 237,895円 坪3,500円 | お問い合わせ | 事務所 |
|
事務所仕様 |
-
-
樋口本店ビル
基準階は100坪超、永代通り沿いの新耐震基準大型ビル!茅場町駅3番出口が目の前で、立地も申し分ありません。同ビルにはスターバックスも入っているため、打ち合わせや、仕事の合間のリラックスタイムの場所として利用できますね。
- 所在地
- 東京都中央区日本橋茅場町1-12-2
- 交通
- 東京メトロ東西線 「茅場町」駅 徒歩1分
- 東京メトロ日比谷線 「八丁堀」駅 徒歩6分
- 東京メトロ銀座線 「日本橋」駅 徒歩8分
- 竣工
- 1986/06
- 用途
- 事務所
※ビルの空フロア全体での用途を表示
| フロア | 面積 | 賃料 | 共益費 | 保証金 | 用途 | 間取り | 内装仕様 | |
|---|---|---|---|---|---|---|---|---|
| 6 階 | 103.21坪 341.20㎡ | -円 | -円 | お問い合わせ | 事務所 |
|
事務所仕様 |
-
-
NIビル
新大橋通り沿いの視認性が高いビル。大理石張りのEVホールは高級感があり、ご来客の多いテナント様にぜひおすすめです。
- 所在地
- 東京都中央区日本橋茅場町3-12-9
- 交通
- 東京メトロ日比谷線 「茅場町」駅 徒歩2分
- 東京メトロ東西線 「茅場町」駅 徒歩2分
- JR山手線 「八丁堀」駅 徒歩5分
- 竣工
- 1992/09
- 用途
- 事務所、店舗
※ビルの空フロア全体での用途を表示
| フロア | 面積 | 賃料 | 共益費 | 保証金 | 用途 | 間取り | 内装仕様 | |
|---|---|---|---|---|---|---|---|---|
| 2 階 | 33.90坪 112.06㎡ | 508,500円 坪15,000円 | 101,700円 坪3,000円 | -円 | 事務所 店舗 |
|
事務所仕様 |
-
-
Aster茅場町
茅場町駅出入り口すぐの2018年竣工の築浅オフィスビルです。新大橋通りに面しているので分かりやすく、道路幅が広いので圧迫感がありません。また角ビルのため採光も多く入りそうです。
- 所在地
- 東京都中央区日本橋茅場町2-7-4
- 交通
- 東京メトロ東西線 「茅場町」駅 徒歩1分
- 東京メトロ日比谷線 「茅場町」駅 徒歩1分
- 東京メトロ銀座線 「日本橋」駅 徒歩6分
- 竣工
- 2018/03
- 用途
- 事務所
※ビルの空フロア全体での用途を表示
| フロア | 面積 | 賃料 | 共益費 | 保証金 | 用途 | 間取り | 内装仕様 | |
|---|---|---|---|---|---|---|---|---|
| 4 階 | 24.11坪 79.70㎡ | 554,530円 坪23,000円 | -円 | お問い合わせ | 事務所 |
|
事務所仕様 |
-
-
日宝茅場町ビル
新大橋通りから少し入ったところにあり、茅場町駅2番出口からは徒歩2分と立地良し!郵便局や金融機関も充実しています。
- 所在地
- 東京都中央区日本橋茅場町3-5-3
- 交通
- 東京メトロ東西線 「茅場町」駅 徒歩2分
- 東京メトロ日比谷線 「茅場町」駅 徒歩2分
- 東京メトロ日比谷線 「八丁堀」駅 徒歩4分
- 竣工
- 1985/02
- 用途
- 事務所
※ビルの空フロア全体での用途を表示
| フロア | 面積 | 賃料 | 共益費 | 保証金 | 用途 | 間取り | 内装仕様 | |
|---|---|---|---|---|---|---|---|---|
| 3 階 | 10.75坪 35.56㎡ | 139,750円 坪13,000円 | 32,250円 坪3,000円 | 698,750円 賃料の5ヶ月分 | 事務所 |
|
事務所仕様 |
-
-
坂本ビル
ドラマの撮影にも使われました!茅場町駅徒歩1分なのに、周囲は静かで落ち着いた雰囲気。茶色のタイル張りの外壁が特徴的なレトロビルです!周りにはコンビニや飲食店も豊富にあり、小腹がすいても困りません。
- 所在地
- 東京都中央区日本橋茅場町2-16-11
- 交通
- 東京メトロ日比谷線 「茅場町」駅 徒歩1分
- JR線 「八丁堀」駅 徒歩5分
- 東京メトロ銀座線 「日本橋」駅 徒歩9分
- 竣工
- 1972/02
- 用途
- 事務所
※ビルの空フロア全体での用途を表示
| フロア | 面積 | 賃料 | 共益費 | 保証金 | 用途 | 間取り | 内装仕様 | |
|---|---|---|---|---|---|---|---|---|
| 2 階 | 16.72坪 55.27㎡ | 150,480円 坪9,000円 | -円 | 902,880円 賃料の6ヶ月分 | 事務所 |
|
事務所仕様 |
-
-
日本ビルディング本館
築年数は経っておりますが、2004年に耐震補強工事済みです!
- 所在地
- 東京都中央区日本橋茅場町1-2-4
- 交通
- 東京メトロ半蔵門線 「水天宮前」駅 徒歩1分
- 東京メトロ日比谷線 「茅場町」駅 徒歩3分
- 東京メトロ東西線 「茅場町」駅 徒歩3分
- 竣工
- 1958/05
- 用途
- 事務所
※ビルの空フロア全体での用途を表示
| フロア | 面積 | 賃料 | 共益費 | 保証金 | 用途 | 間取り | 内装仕様 | |
|---|---|---|---|---|---|---|---|---|
| 1 階 | 82.61坪 273.09㎡ | -円 | 313,918円 坪3,800円 | お問い合わせ | 事務所 |
|
事務所仕様 |
-
-
日本橋テイユービル
茅場町駅徒歩2分、新耐震基準ビル!!
録画付きインターホンにオートロックと安心の警備体制です。角地で日当たり良好、閑静で集中できる場所ですね。FR等の条件ご相談下さい!- 所在地
- 東京都中央区日本橋茅場町2-14-7
- 交通
- 東京メトロ日比谷線 「茅場町」駅 徒歩2分
- 東京メトロ東西線 「茅場町」駅 徒歩2分
- JR京葉線 「八丁堀」駅 徒歩6分
- 竣工
- 1988/4
- 用途
- 事務所
※ビルの空フロア全体での用途を表示
| フロア | 面積 | 賃料 | 共益費 | 保証金 | 用途 | 間取り | 内装仕様 | |
|---|---|---|---|---|---|---|---|---|
| 4 階 | 11.35坪 37.52㎡ | 149,820円 坪13,200円 | 39,725円 坪3,500円 | 898,920円 賃料の6ヶ月分 | 事務所 |
|
事務所仕様 |
-
-
JP茅場町ビル(旧:郵船茅場町ビル)
茅場町駅徒歩1分、交差点の角地に立地する大型オフィスビル。1階部には薬局、並びにはコンビニもあり利便性もよいです。入居テナント専用のリフレッシュルームあり。日中は管理人駐在で安心です。
- 所在地
- 東京都中央区日本橋茅場町1-8-3
- 交通
- 東京メトロ日比谷線 「茅場町」駅 徒歩1分
- 東京メトロ東西線 「茅場町」駅 徒歩1分
- 都営浅草線 「日本橋」駅 徒歩5分
- 竣工
- 1974/06
- 用途
- 事務所
※ビルの空フロア全体での用途を表示
| フロア | 面積 | 賃料 | 共益費 | 保証金 | 用途 | 間取り | 内装仕様 | |
|---|---|---|---|---|---|---|---|---|
| 7 階 | 77.06坪 254.74㎡ | -円 | -円 | お問い合わせ | 事務所 |
|
居抜き | |
| 6 階 | 46.89坪 155.00㎡ | -円 | -円 | お問い合わせ | 事務所 |
|
居抜き |




