新々会館日本橋ビル
事務所
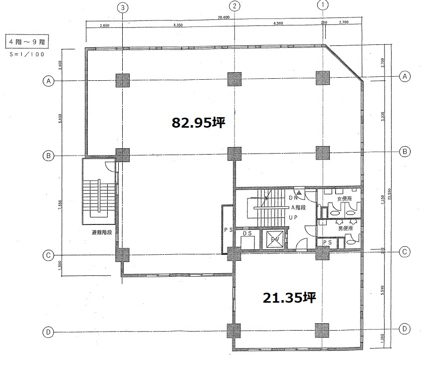
21.35坪 (70.58㎡) 9 階
- 賃料
- 384,300円 坪18,000円
- 共益費
- 64,050円 坪3,000円
- 空室状況をお問い合わせ
-
お気に入りの物件は
まとめて問い合わせができます。 お気に入りに追加
昭和通り沿いに面しており、歩道橋を渡ると日本橋駅、東京駅5分圏内。
角地のため日当たりも良いです。エアコンも変えたばかりでそのままお使い下さい。
基本情報
- 用途
- 事務所
- 建物名
- 新々会館日本橋ビル
- 所在地
- 東京都中央区日本橋3-14-1 地図
- 交通
-
東京メトロ銀座線 「日本橋」駅 徒歩4分
-
都営浅草線 「日本橋」駅 徒歩3分
-
JR各線 「東京」駅 徒歩10分
- 竣工
- 1971/12
- 構造
- SRC造
- 規模
- 地下1階付 9階建て
- 入居時期
- 即日
- 契約期間
- 定期借家契約(期間相談)
- 保証金
- 3,843,000円
- 礼金
- 無し
- 更新料/再契約料
- 無し
- 償却
- 無し
- 媒体
- 媒介
設備
- エレベーター:1基
- 駐車場:有り
- 天井高:2,450mm
- 床仕様:OAフロア
- 光ファイバー:MDFまで引込済み
- 空調:個別空調
- トイレ:フロア共用 男女別
- 警備:機械警備+有人警備
- 給湯:フロア共用
地図
備考
*契約期間2~3年相談
*駐車場空きあり(1台)




