日本橋3丁目新々会館日本橋ビル
-
昭和通り沿いの重厚感あるビルです。桜通りにも面して春は桜満開です。
日本橋駅からも5分圏内で通勤も便利。歩道橋を渡ると目の前が高島屋です。- 所在地
- 東京都中央区日本橋3-14-1
- 交通
- 東京メトロ銀座線 「日本橋」駅 徒歩4分
- 都営浅草線 「日本橋」駅 徒歩3分
- JR各線 「東京」駅 徒歩10分
- 竣工
- 1971/12
- 用途
-
事務所
※ビルの空フロア全体での用途を表示
- 規模
- 地上 9階 / 地下1階付
- 耐震基準
- 旧耐震
- 構造
- SRC造
- エレベーター
- 1基
- 駐車場
- 有り
現在募集中のフロア
| フロア | 面積 | 賃料 | 共益費 | 保証金 | 用途 | 間取り | 内装仕様 | |
|---|---|---|---|---|---|---|---|---|
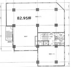
| 4 階 | 82.95坪 274.21㎡ | 1,493,100円 坪18,000円 | 248,850円 坪3,000円 | 14,931,000円 賃料の10ヶ月分 | 事務所 |
|
||
| 9 階 | 21.35坪 70.58㎡ | 384,300円 坪18,000円 | 64,050円 坪3,000円 | 3,843,000円 | 事務所 |
|




