テラサキ第2ビル
事務所
基本情報
- 用途
- 事務所
- 建物名
- テラサキ第2ビル
- 所在地
- 東京都中央区日本橋室町1-12-15 地図
- 交通
-
東京メトロ半蔵門線・銀座線 「三越前」駅 徒歩1分
-
JR総武本線 「新日本橋」駅 徒歩4分
-
東京メトロ東西線 「日本橋」駅 徒歩6分
- 竣工
- 1992
- 構造
- SRC造
- 規模
- 地下1階付 7階建て
- 入居時期
- 2026/3上旬
- 契約期間
- 普通借家契約(2年)
- 保証金
- 17,285,100円 (賃料の10ヶ月分)
- 礼金
- 無し
- 更新料/再契約料
- 無し
- 償却
- 無し
- 媒体
- 媒介
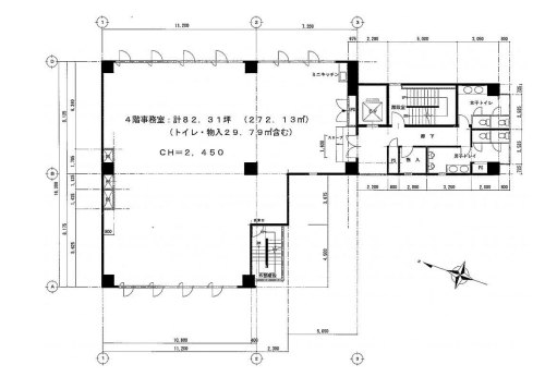
設備
- エレベーター:1基(11人乗)
- 駐車場:*備考参照
- 天井高:2400mm
- 床仕様:OAフロア+タイルカーペット
- 光ファイバー:室内まで
- 空調:個別空調
- トイレ:フロア専用男女別 洋式
- 警備:機械警備
- 給湯:室内専用
地図
備考
*トイレ新規リニューアル予定
*別途指定清掃会社と契約必須
*土日祝日エントランスクローズ(セキュリティカードにより出入り可)




