owns八丁堀
事務所
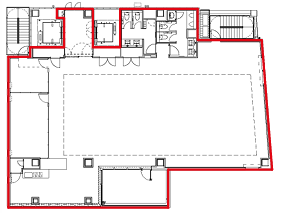
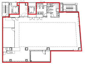
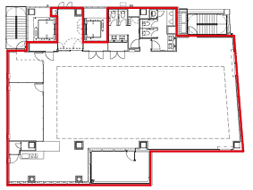
約101坪の事務所区画の募集です。詳細はお問い合わせください。
- セットアップオフィス
- 什器: なし
基本情報
- 用途
- 事務所
- 建物名
- owns八丁堀
- 所在地
- 東京都中央区八丁堀3-20-4 地図
- 交通
-
東京メトロ日比谷線 「八丁堀」駅 徒歩2分
-
JR京葉線 「八丁堀」駅 徒歩3分
-
東京メトロ東西線 「茅場町」駅 徒歩8分
- 竣工
- 2025/05
- 構造
- 鉄骨造
- 規模
- 12階建て
- 入居時期
- 即日
- 契約期間
- 定期借家契約(3年)
- 保証金
- -円
- 礼金
- 無し
- 更新料/再契約料
- 無し
- 償却
- 無し
- 媒体
- 媒介
設備
- エレベーター:有り
- 駐車場:-
- 天井高:3,400mm
- 床仕様:OAフロア
- 光ファイバー:対応
- 空調:個別空調
- トイレ:フロア専用 男女別
- 警備:機械警備
- 給湯:フロア専用
地図
備考
ハーフセットアップ
*契約面積には化粧室・専用テラスを含む
~ハーフセットアップ~
①会議室x2内装済
②貸室の半分に家具設置




