東和八重洲ビル(旧:春陽堂ビル)
事務所
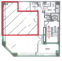
15.83坪 (52.33㎡) 9 階
- 賃料
- 554,050円 坪35,000円
- 共益費
- 79,150円 坪5,000円
- 空室状況をお問い合わせ
-
お気に入りの物件は
まとめて問い合わせができます。 お気に入りに追加
八重洲通りに面した角ビルで明るい貸室となります。元クリニックの区画で間仕切り壁が利用可能です。目の前はTOFROM八重洲が竣工予定です。近隣が開発が進む中、お求めやすい面積が即入居可能です。
基本情報
- 用途
- 事務所
- 建物名
- 東和八重洲ビル(旧:春陽堂ビル)
- 所在地
- 東京都中央区日本橋3-4-16 地図
- 交通
-
JR線 「東京」駅 徒歩4分
-
東京メトロ銀座線 「日本橋」駅 徒歩6分
-
銀座 「京橋」駅 徒歩6分
- 竣工
- 1968/1
- 構造
- SRC造
- 規模
- 地下1階付 10階建て
- 入居時期
- 2026/5月上旬(予定)
- 契約期間
- 定期借家契約(5年)
- 保証金
- 5,540,500円 (賃料の10ヶ月分)
- 礼金
- 賃料の1ヶ月分
- 更新料/再契約料
- 新賃料の1ヶ月分
- 償却
- 保証金の10%
- 媒体
- 媒介
設備
- エレベーター:1基
- 駐車場:無し
- 天井高:-
- 床仕様:タイルカーペット
- 光ファイバー:MDFまで
- 空調:有り
- トイレ:フロア共用 男女別
- 警備:有り
- 給湯:有り
地図
備考
・中途解約 6か月前書面通知 解約違約30%償却




