WORK VILLA YAESU(旧:八重洲宝町ビル)
事務所
- セットアップオフィス
- 什器: なし
基本情報
- 用途
- 事務所
- 建物名
- WORK VILLA YAESU(旧:八重洲宝町ビル)
- 所在地
- 東京都中央区京橋1-18-1 地図
- 交通
-
JR各線 「東京」駅 徒歩8分
-
東京メトロ東西線 「日本橋」駅 徒歩5分
-
都営浅草線 「宝町」駅 徒歩3分
- 竣工
- 2026/5
- 構造
- 地上S造・地下RC造
- 規模
- 地下2階付 13階建て
- 入居時期
- 2026/5/22
- 契約期間
- 定期借家契約(3~5年)
- 保証金
- 87,001,164円
- 礼金
- -
- 更新料/再契約料
- お問い合わせください
- 償却
- -
- 媒体
- 媒介
設備
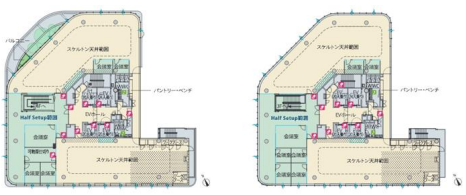
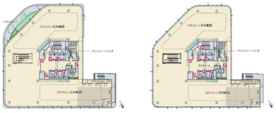
- エレベーター:20人乗り3基24人乗り1基
- 駐車場:入ルーフ13台ノーマルルーフ20台
- 天井高:2700㎜(スケルトン範囲内3700㎜)
- 床仕様:OA85㎜
- 光ファイバー:-
- 空調:-
- トイレ:-
- 警備:-
- 給湯:-




