美倉ビル
事務所
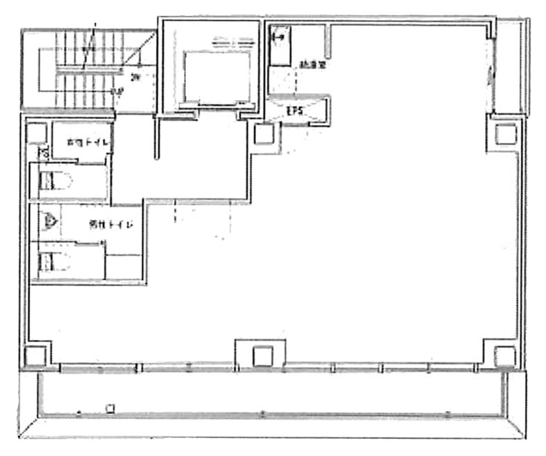
30.11坪 (99.53㎡) 5 階
- 賃料
- 496,815円 坪16,500円
- 共益費
- 135,495円 坪4,500円
- 空室状況をお問い合わせ
-
お気に入りの物件は
まとめて問い合わせができます。 お気に入りに追加
基本情報
- 用途
- 事務所
- 建物名
- 美倉ビル
- 所在地
- 東京都千代田区神田美倉町4 地図
- 交通
-
JR山手線・中央線 「神田」駅 徒歩5分
-
東京メトロ銀座線 「神田」駅 徒歩5分
-
JR総武快速線 「新日本橋」駅 徒歩4分
- 竣工
- 2019/11
- 構造
- 鉄骨造
- 規模
- 地下1階付 9階建て
- 入居時期
- 2025/12中旬
- 契約期間
- 2年
- 保証金
- 4,968,150円 (賃料の10ヶ月分)
- 礼金
- 無
- 更新料/再契約料
- 賃料の1ヶ月分
- 償却
- 賃料の1ヶ月分
- 媒体
- 媒介
設備
- エレベーター:1基(9人乗)
- 駐車場:-
- 天井高:-
- 床仕様:OAフロア
- 光ファイバー:-
- 空調:個別空調
- トイレ:男女別トイレ
- 警備:機械警備
- 給湯:あり




