- HOME
- 日本橋堀留町 1丁目
- JL日本橋ビル
- 2 階
JL日本橋ビル
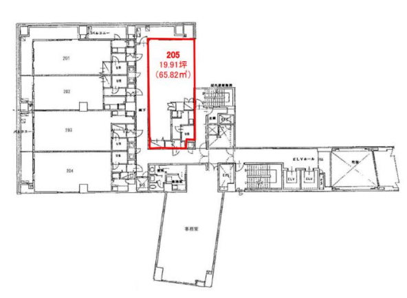
事務所
基本情報
- 用途
- 事務所
- 建物名
- JL日本橋ビル
- 所在地
- 東京都中央区日本橋堀留町1-10-15 地図
- 交通
-
東京メトロ日比谷線 「小伝馬町」駅 徒歩5分
-
東京メトロ日比谷線 「人形町」駅 徒歩4分
-
都営新宿線 「馬喰横山」駅 徒歩8分
- 竣工
- 1993/09
- 構造
- SRC造
- 規模
- 地下1階付 9階建て
- 入居時期
- 2026/3/1
- 契約期間
- 普通借家契約(2年)
- 保証金
- お問い合わせください
- 礼金
- 無し
- 更新料/再契約料
- 無し
- 償却
- 無し
- 媒体
- 媒介
設備
- エレベーター:2基(13人乗)900㎏
- 駐車場:有り
- 天井高:2500mm
- 床仕様:OAフロア(75mm)
- 光ファイバー:-
- 空調:個別空調
- トイレ:-
- 警備:機械警備
- 給湯:-
地図
備考
・床荷重 300㎏/㎡
・処理費:通常ゴミは共益費に含む




