03-6262-5940お気軽にご相談ください

八丁堀フロンティアビル

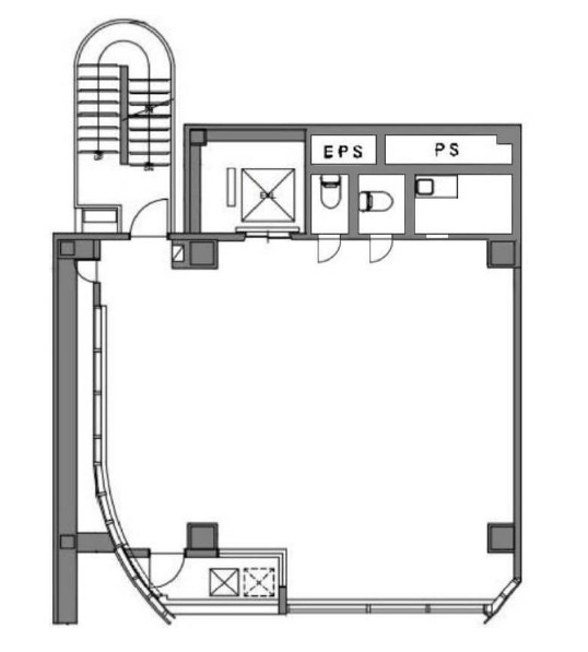
事務所

24.46 (80.85㎡) 2

賃料
366,90015,000
共益費
-

基本情報

用途
事務所
建物名
八丁堀フロンティアビル
所在地
東京都中央区八丁堀4-9-9 地図
交通
東京メトロ日比谷線 「八丁堀」駅 徒歩2分
都営浅草線 「宝町」駅 徒歩5分
東京メトロ有楽町線 「新富町 」駅 徒歩7分
竣工
1991/01
構造
SRC造
規模
地下1階付 7階建て
入居時期
2025/11月初旬
契約期間
普通借家契約(2年)
保証金
733,800円 (賃料の2ヶ月分)
礼金
無し
更新料/再契約料
新賃料の1ヶ月分
償却
賃料の1ヶ月分
媒体
媒介

設備

  • エレベーター:1基
  • 駐車場:-
  • 天井高:-
  • 床仕様:-
  • 光ファイバー:引込可能
  • 空調:個別空調
  • トイレ:男女別トイレ
  • 警備:-
  • 給湯:有り

地図

備考

■火災保険加入必須

■解約予告6ヶ月前

■電気料金・水道料金:管理会社より使用量に応じて請求

■清掃料金:任意(清掃を依頼する場合は専用部清掃指定業者と別途契約)

■ゴミ処理費:入居者様でゴミ袋(透明・半透明)をご用意頂き、指定場所に排出

■社名案内板案内板の作成費用は賃貸人負担(色・字体指定有)



初回保証委託料:賃料消費税含む1.3ヶ月分

継続保証委託料:無料賃料滞納回数が年1回以下の場合