- HOME
- 日本橋茅場町 2丁目
- 全国中小企業会館
- 2 階
全国中小企業会館
事務所
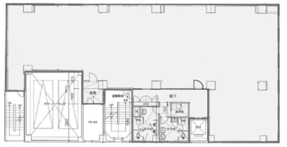
水回りなどは共用部にあり、室内を広く利用いただけます!また、同ビル内には最大40名規模の貸し会議室もあり、外部の方を呼んだ会議などにも対応可能です。茅場町駅1分の好立地で、飲食店の他、各種環境が充実です!
2024/10/2 賃料目安1.8万くらい
基本情報
- 用途
- 事務所
- 建物名
- 全国中小企業会館
- 所在地
- 東京都中央区日本橋茅場町2-8-4 地図
- 交通
-
東京メトロ東西線 「茅場町」駅 徒歩1分
-
東京メトロ日比谷線 「茅場町」駅 徒歩1分
- 竣工
- 1986/11
- 構造
- SRC造
- 規模
- 地下1階付 8階建て
- 入居時期
- 即日
- 契約期間
- 普通借家契約2年
- 保証金
- お問い合わせください
- 礼金
- 無し
- 更新料/再契約料
- 無し
- 償却
- 賃料の1ヶ月分
- 媒体
- 媒介
設備
- エレベーター:1基
- 駐車場:あり 50,000円/月(税別)
- 天井高:-
- 床仕様:-
- 光ファイバー:MDFまで
- 空調:-
- トイレ:フロア共用男女別
- 警備:有人警備
- 給湯:フロア共用
地図
備考
*別途清掃契約
*自転車置き場相談可
*NET面積84.95坪




