日本橋本町THビル(旧:和光純薬ビル)
事務所
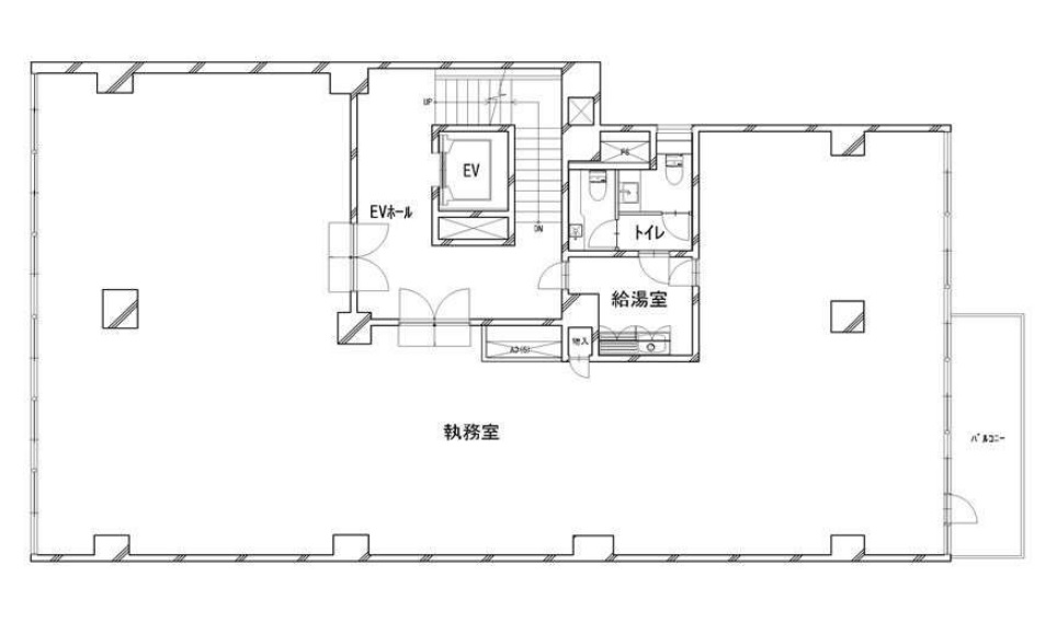
60.93坪 (201.42㎡) 4 階
- 賃料
- 883,485円 坪14,500円
- 共益費
- 152,325円 坪2,500円
- 空室状況をお問い合わせ
-
お気に入りの物件は
まとめて問い合わせができます。 お気に入りに追加
基本情報
- 用途
- 事務所
- 建物名
- 日本橋本町THビル(旧:和光純薬ビル)
- 所在地
- 東京都中央区日本橋本町4-5-13 地図
- 交通
-
JR線 「新日本橋ビル」駅 徒歩3分
-
JR線・東京メトロ銀座線 「神田」駅 徒歩6分
-
東京メトロ銀座線・半蔵門線 「三越前」駅 徒歩7分
- 竣工
- 1963/03
- 構造
- SRC造
- 規模
- 地下1階付 9階建て
- 入居時期
- 2026/11/1(予定)
- 契約期間
- 定期借家契約(備考参照)
- 保証金
- 8,834,850円
- 礼金
- 無し
- 更新料/再契約料
- 新賃料の1ヶ月分
- 償却
- 賃料の2ヶ月分
- 媒体
- 媒介
設備
- エレベーター:1基(6人乗)
- 駐車場:無し
- 天井高:2,340mm
- 床仕様:OAフロア(55mm)
- 光ファイバー:-
- 空調:個別空調
- トイレ:フロア専用 男女別
- 警備:機械警備+有人警備
- 給湯:フロア専用
地図
備考
契約期間:2029/12月末まで
*再契約相談可
*機械警備料(月額:15,000円税別)
*リニューアル工事済み
*耐震補強工事実施済み
*エントランス開閉時間:平日(7:00~19:00) 土日祝日・終日閉鎖 ※時間外は裏側通用口にて24h入退館可能
*電気料:個別メーターにてご請求
*水道料:契約面積×200円
*清掃料:執務室内、全て指定管理会社と別途契約(任意)仕様については応相談
*ゴミ処理費:契約面積×200円




