朝日ビルヂング
事務所
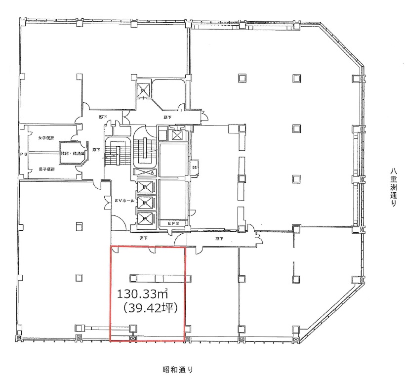
35.39坪 (117.00㎡) 3 階
- 賃料
- 759,115円 坪21,450円
- 共益費
- 175,181円 坪4,944円
- 空室状況をお問い合わせ
-
お気に入りの物件は
まとめて問い合わせができます。 お気に入りに追加
分割されている区画の募集です。トイレ、給湯が共用部にあります。
大型ビルなので他フロアにもたくさんの企業が入居中。
基本情報
- 用途
- 事務所
- 建物名
- 朝日ビルヂング
- 所在地
- 東京都中央区日本橋3-12-2 地図
- 交通
-
東京メトロ銀座線 「日本橋」駅 徒歩5分
-
JR線・丸の内線・他 「東京」駅 徒歩6分
-
東京メトロ東西線 「日本橋」駅 徒歩5分
- 竣工
- 1964/07
- 構造
- SRC造
- 規模
- 地下4階付 9階建て
- 入居時期
- 2026/1(予定)
- 契約期間
- 定期借家契約(5年)
- 保証金
- 9,109,380円
- 礼金
- 無し
- 更新料/再契約料
- 無し
- 償却
- 無し
- 媒体
- 媒介
設備
- エレベーター:3基(17人乗)
- 駐車場:有り
- 天井高:2550mm
- 床仕様:OAフロア
- 光ファイバー:MDFまで
- 空調:セントラル空調
- トイレ:フロア共用 男女別
- 警備:有人警備
- 給湯:フロア共用




