- HOME
- 日本橋 2丁目
- 日本橋セントラルスクエア
- 3 階
日本橋セントラルスクエア
事務所
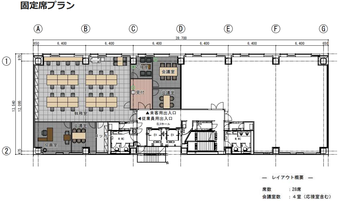
レイアウト効率の高い長方形。
設備スペックも高く、環境の良いオフィス空間作りが出来そうですね。ハイグレードビルの分割区画を是非ご活用ください。
- セットアップオフィス
- 什器: -
基本情報
- 用途
- 事務所
- 建物名
- 日本橋セントラルスクエア
- 所在地
- 東京都中央区日本橋2-16-11 地図
- 交通
-
東京メトロ東西線 「日本橋」駅 徒歩1分
-
東京メトロ銀座線 「日本橋」駅 徒歩1分
-
JR各線 「東京」駅 徒歩10分
- 竣工
- 2010/02
- 構造
- 鉄骨造
- 規模
- 8階建て
- 入居時期
- 2026/4/1
- 契約期間
- 普通借家2年
- 保証金
- お問い合わせください
- 礼金
- 無し
- 更新料/再契約料
- 無し
- 償却
- 無し
- 媒体
- 媒介
設備
- エレベーター:2基
- 駐車場:有り
- 天井高:2,800mm
- 床仕様:OA100mm
- 光ファイバー:MDFまで
- 空調:個別空調
- トイレ:フロア専用男女別
- 警備:機械警備
- 給湯:フロア専用
地図
備考
都営浅草線日本橋駅から徒歩1分
・機械式駐車場
サイズ制限(全長5.30m、全幅1.95m、全高1.55m、重量2.3t以内)
駐車料金:45,000円/台・月 敷金:3ヵ月
・入退館カードの追加発行等は実費負担。(入居時1フロア40枚、半フロア20枚は無償貸与。追加時は2,200円/枚、紛失時は抹消手数料3,000円/枚)




