油脂工業会館
事務所
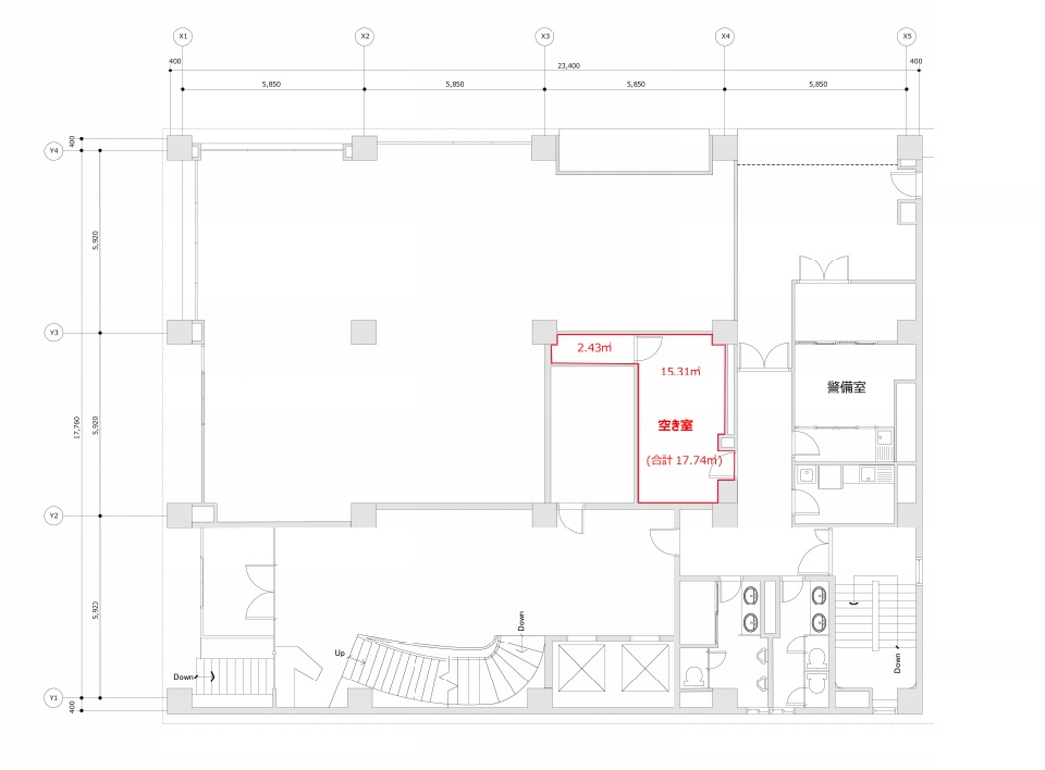
21.86坪 (72.26㎡) 3 階
- 賃料
- 393,480円 坪18,000円
- 共益費
- 65,580円 坪3,000円
- 空室状況をお問い合わせ
-
お気に入りの物件は
まとめて問い合わせができます。 お気に入りに追加
都営地下鉄浅草線「日本橋」駅より徒歩3分の賃貸オフィスビルでございます。館内には小~大の3種類の貸会議室があります。有人での警備も行っており、セキュリティー面も安心感がございます。
基本情報
- 用途
- 事務所
- 建物名
- 油脂工業会館
- 所在地
- 東京都中央区日本橋3-13-11 地図
- 交通
-
都営浅草線 「日本橋」駅 徒歩3分
-
東京メトロ銀座線 「日本橋」駅 徒歩5分
-
JR線 「東京」駅 徒歩10分
- 竣工
- 1963/02
- 構造
- SRC造
- 規模
- 地下2階付 9階建て
- 入居時期
- 2026/6 以降
- 契約期間
- 普通借家契約(2年)
- 保証金
- 3,934,800円
- 礼金
- 無し
- 更新料/再契約料
- 無し
- 償却
- 無し
- 媒体
- 媒介
設備
- エレベーター:2基(11人乗)
- 駐車場:無し(作業車用1台)
- 天井高:2,700㎜~2,800㎜
- 床仕様:OAフロア+タイルカーペット
- 光ファイバー:対応
- 空調:集中冷暖房及引固別空調完備
- トイレ:フロア共用 男女別
- 警備:有人警備
- 給湯:フロア共用
地図
備考
*退去時、原状回復必須
*賃貸面積は共用部分を含まないNET面積
*大・中・小会議室・役員会議室(テナント優先で低料金で利用可)
*光通信回線:契約・工事は入居者




