日本橋2丁目ACN日本橋PLACE(旧:アーバンゲート日本橋)
-
2019年4月竣工の新築物件。日本橋駅徒歩2分の好立地です。1階は店舗、上層階は約20坪の事務所での募集です。条件等ご相談ください。
- 所在地
- 東京都中央区日本橋2-16-6
- 交通
- 東京メトロ銀座線 「日本橋」駅 徒歩2分
- 都営浅草線 「日本橋」駅 徒歩2分
- 東京メトロ東西線 「茅場町」駅 徒歩4分
- 竣工
- 2019/04
- 用途
-
事務所
※ビルの空フロア全体での用途を表示
- 規模
- 地上 10階
- 耐震基準
- 新耐震
- 構造
- RC造
- エレベーター
- 1基
- 駐車場
- -
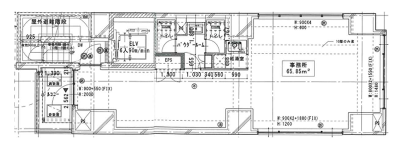
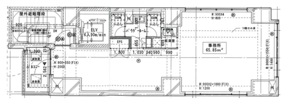
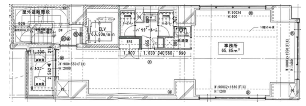
現在募集中のフロア
| フロア | 面積 | 賃料 | 共益費 | 保証金 | 用途 | 間取り | 内装仕様 | |
|---|---|---|---|---|---|---|---|---|
| 3 階 | 19.91坪 65.81㎡ | -円 | -円 | お問い合わせ | 事務所 |
|
セットアップオフィス 什器なし | |
| 9 階 | 19.91坪 65.81㎡ | -円 | -円 | お問い合わせ | 事務所 |
|
事務所仕様 | |
| 6 階 | 19.91坪 65.81㎡ | 517,660円 坪26,000円 | -円 | 2,070,640円 | 事務所 |
|
セットアップオフィス 什器なし |




