新築ビル!重飲食可!三軒茶屋駅から徒歩3分★茶沢通り沿い★おすすめ店舗物件

目次
新築ビル!重飲食可!三軒茶屋駅から徒歩3分★茶沢通り沿い★おすすめ店舗物件
今月一番のおすすめ店舗物件です!
交通アクセス
東急田園都市線「三軒茶屋」駅 徒歩3分
東急世田谷線「三軒茶屋」駅 徒歩3分
駅から物件までのアクセス方法

三軒茶屋駅 北口A出口を出て、すぐ右角にドラッグストアがあります。
曲がって茶沢通りの看板が見えたら、ずっと真っすぐです!

左手にSEIYUが見えてきます!もう少しです。

大光堂さんの看板が見えたら、お隣が当物件になります♪
到着!
物件概要🏢
ビル名:ACN三軒茶屋ビル
住所:東京都世田谷区太子堂2-17
構造/規模:鉄骨造/地上8階
竣工:2025年10月

募集詳細
■階数:2~8階
□面積:19.52坪(64.56㎡)
■賃料:ご相談ください
□入居時期:即日
■契約期間:定期借家契約 3年(年数相談可)
2、3、8階 重飲食可能です!(ダクト設置済み)
4~7階 軽飲食可能!サービス店舗歓迎です!
業種お気軽にお問い合わせください!
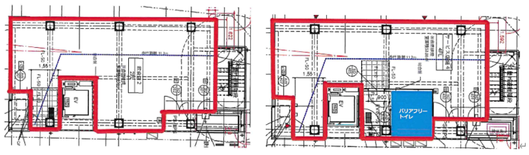
図面
2~3、5~8階 4階

4階のみバリアフリートイレが設置されています。
バリアフリートイレ🚽

フロア写真
2階

4階

8階

★オススメポイント★
①入口がバリアフリーの為車いすの方も出入りがしやすい
②窓が大きく開放感がある&日当たりGOOD
③駅からも高アクセス(茶沢通り沿いで人通りもとてもあります)
是非!お気軽にお問合せください!
内見希望も随時受付中です♪
*その他飲食可能物件も多数あります*
物件提案も承っておりますので、店舗お探しの方はぜひ一度お問い合わせください。
物件提案フォーム→https://nihonbashi.officeman.tokyo/contact/index
ご相談お待ちしております
当社では、店舗物件のほかにも、様々なオフィス・事務所の物件情報を多数ご用意しております。ご希望に合わせて最適な物件選びをサポートいたします。
「まずはどんな物件があるか見てみたい」
そんな相談でも大歓迎です。ぜひお気軽にお問い合わせください。
お電話はこちらまで
電話番号(日本橋さくら通り店)03-6262-5940








