★【1階店舗+2~9階セットアップオフィス】アクセス良好!浅草線・東日本橋 駅チカ物件!

目次
★【1階店舗+2~9階セットアップオフィス】アクセス良好!浅草線・東日本橋 駅チカ物件!
今月おすすめ物件のご紹介です。
今回も今需要が高いセットアップオフィスのご紹介です!
什器付きフルセットアップ!11月に改修工事完了!什器デザインの相談可★おしゃれオフィス
■S-CUBE(エスキューブ)旧:第3シラカワビル
■所在地:東京都中央区東日本橋2-25-4
■アクセス
都営浅草線 東日本橋駅 徒歩5分
JR総武本線 馬喰町駅 徒歩5分
JR中央・総武線 浅草橋駅 徒歩7分
3路線利用可能でアクセスも良好!
周辺環境も落ち着いていて静かな通りです。
■面積
1階:18.35坪(60.67㎥)
2階:29.13坪(96.30㎥)
3-9階:29.85坪(98.67㎥)
■契約期間 普通借家契約2年(1階は要相談)
■入居時期 即日可
■賃料
1階:450,000円(税別)
2-9階:650,000円(税別)
!フリーレント3ヶ月!
■利用用途
1階:店舗(飲食相談可)
2-9階:事務所(各階フルセットアップ)
↓その他諸条件はこちらからご確認くださいませ。
https://nihonbashi.officeman.tokyo/building/index/3712
物件外観・共用部

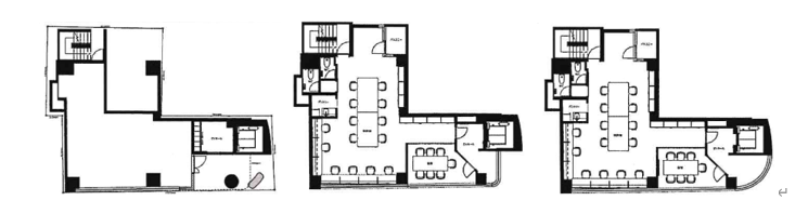
図面
1階 2階 3-9階

フロア写真
2-9階(セットアップオフィスフロア)
■執務室

天井がスケルトンになっていて、抜け感がありオシャレです✨
■会議室

什器デザインは組み合わせ含めご相談可能でございます!
“会議室に什器はいらない”等の要望もお答えできます。
■トイレ・給湯スペース

トイレはウォシュレット付きでフロア専用です。
鏡にライトがついているので、へアセットやメイクのお直しもしやすいです◎
その他のセットアップオフィスも多数あります!
物件一覧URL→https://nihonbashi.officeman.tokyo/item/search/setup_office
ご相談お待ちしております
当社では、セットアップオフィスのほかにも、様々なオフィス・店舗の物件情報を多数ご用意しております。ご希望に合わせて最適な物件選びをサポートいたします。
「まずはどんな物件があるか見てみたい」
そんな相談でも大歓迎です。ぜひお気軽にお問い合わせください。
お問い合わせはこちら
電話番号(日本橋さくら通り店)→ 0362625940
お問い合わせフォーム→https://nihonbashi.officeman.tokyo/contact/index








